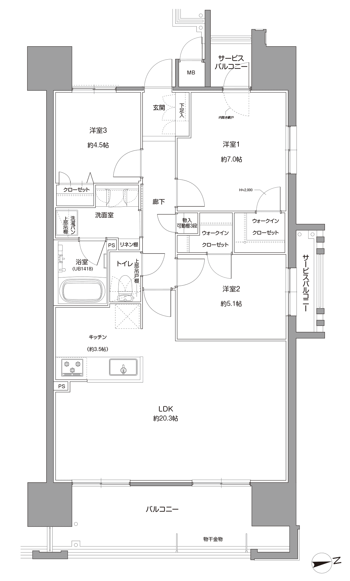
Dtype

3LDK +2WIC
専有面積
79.94㎡(24.18坪)
バルコニー面積/(2〜5F)14.00㎡(4.23坪)(6〜20F)12.00㎡(3.63坪)
サービスバルコニー面積/4.60㎡(1.39坪)
間取り図
家具配置イメージ図

※掲載の図面は計画段階のもので今後変更となる場合がございます。掲載の図面はイメージです。詳しくは現地係員までお問い合わせください。